閉じる

作業足場

FRP製トラック昇降タラップ

FRP製トラック昇降タラップ

FRP製トラック昇降タラップ

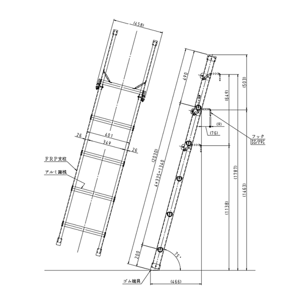
FRP製トラック昇降タラップ 寸法図

寸法図

FRP製トラック昇降タラップ
FRP製トラック昇降タラップ
FRP製トラック昇降タラップ 寸法図
●鉄道現場で軌道上を走る軌陸車荷台へ乗り降りする際の昇降設備として使用できます。
●絶縁タイプのため、感電を防止します。
●軽量のため持ち運びが容易です。
商品コード T3R 00001 001
代表管理番号 008375
メーカー 長谷川工業
荷台対応高さ(mm) 1,099~1,748
寸法 全長L(mm) 1,990
寸法 全幅W(mm) 458
質量(kg) 6

関連チラシ・関連カタログなど

関連・おすすめ商品

新しいソリューションをお届けする情報サイト アクティオ レンサルティングマガジン

第9回鉄道技術展2025に出展。新型軌陸ダンプや衝突軽減システムを展示

TOP

まずはお気軽にご相談ください

商品に関するご質問やお見積りのご相談など、
弊社お問い合わせ窓口か最寄りの店舗まで
お問い合わせくださいませ。